UTM|GÉOMÈTRE TOPOGRAPHE
Relevés Topographiques
MARMANDE [47 • LOT-ET-GARONNE]
NOUVELLE AQUITAINE
Nous mesurons et vous fournissons un relevé détaillé des caractéristiques de votre terrain afin d'accompagner vos projets.
NOS FONDAMENTAUX
PRÉPARATION & PLANIFICATION
RELEVÉS DE TERRAIN
TRAITEMENT & ANALYSE DES DONNÉES
VALIDATION & CONTRÔLE QUALITÉ
CRÉATION DES PLANS & LIVRABLES
Objectif
Mise à l’échelle des éléments caractéristiques pour une connaissance détaillée du site, assurant une conception optimale de vos installations.
2 TYPES DE RELEVÉS
- Traditionnel (station totale + GPS)
- Photogrammétrie par drone (couvre de vastes zones rapidement, position RTK)
LIVRABLES
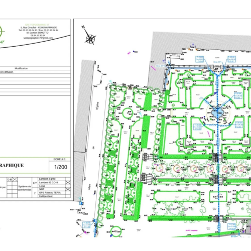
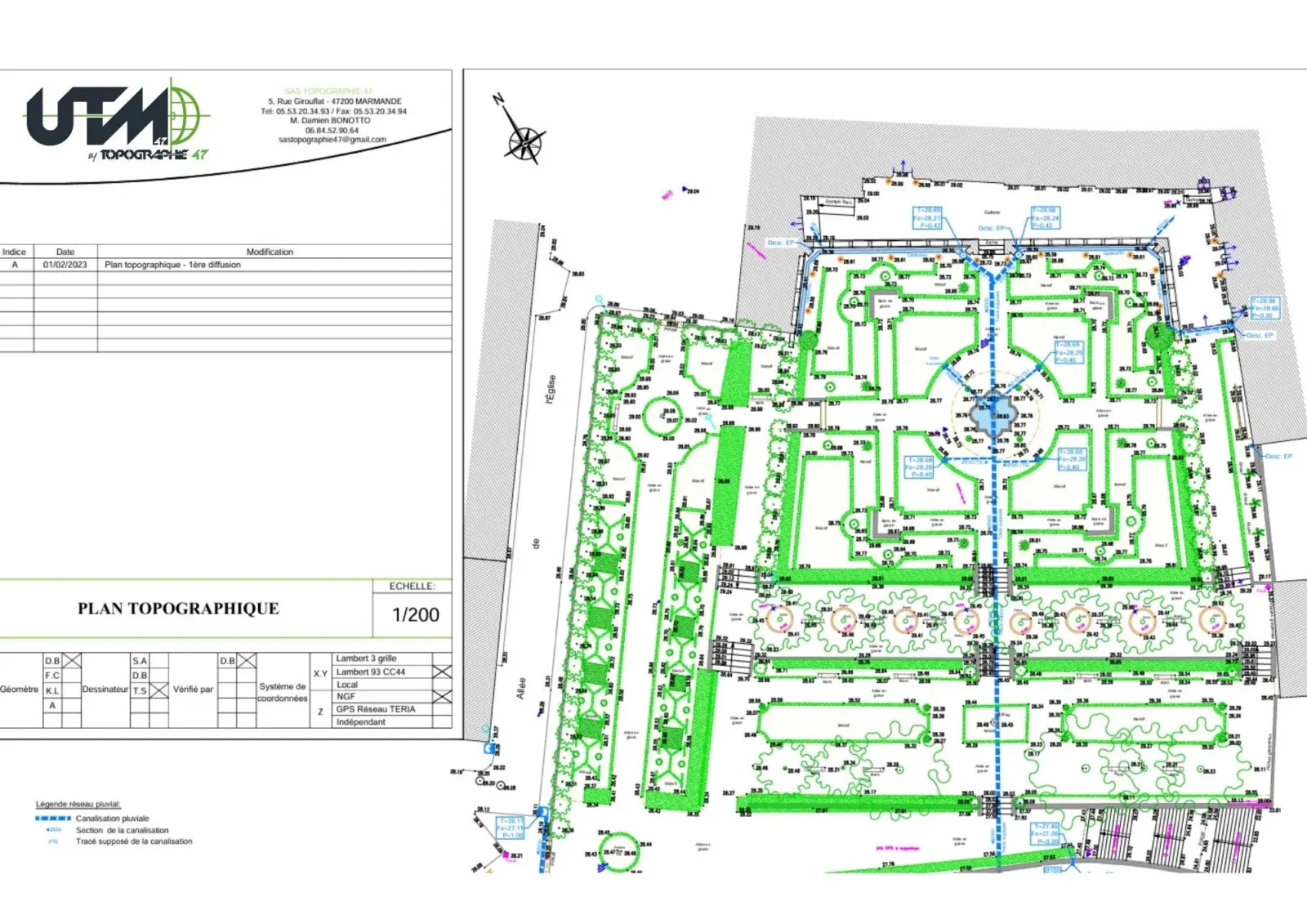
- Plan topographique géoréférencé, détaillé 2D/3D (type état des lieux) : Autocad® (DWG, SIG), PDF
- Carto 200 (DGN)
NOTRE EXPÉRIENCE
Nos services de levé topographique jouent un rôle essentiel dans le succès de nombreux projets d’infrastructure, en collaborant étroitement avec les bureaux d’études, les entreprises de travaux publics et les collectivités locales.
Un plan topographique constitue la base de tout projet, en offrant un état des lieux précis et détaillé de l’existant.
Grâce à des outils de mesure de haute précision, nous fournissons des données cruciales pour chaque étape, de la conception initiale à la réalisation finale.
NOS TECHNOLOGIES
Nous utilisons des stations totales de haute précision et des systèmes GPS/GNSS pour capturer les coordonnées tridimensionnelles d’un site, garantissant une précision centimétrique (GPS) et millimétrique (station totale).
Nos relevés sont réalisés avec des logiciels spécialisés comme Geovisual® et LandtoMap® (SIG), permettant de vérifier en temps réel l’exhaustivité des données et d’éviter les oublis dès le terrain.
UN SAVOIR-FAIRE INÉDIT !
AU SERVICE DE VOTRE IMAGE
Production et montage de vidéos promotionnelles ou commerciales à l’aide du drone pour le suivi des travaux, la communication ou d'autres besoins.
FOIRE AUX QUESTIONS
Quel est le prix d'un relevé topographique ?
Le coût d'un relevé topographique dépend de plusieurs critères : superficie du terrain, complexité du site, accessibilité, précision demandée et livrables attendus. Chaque mission fait l'objet d'un devis personnalisé afin de garantir une prestation adaptée aux besoins réels du projet.
Quelle est la précision d'un relevé topographique ?
Les relevés topographiques réalisés par UTM offrent une précision centimétrique, voire millimétrique selon les équipements utilisés (station totale, GNSS RTK, drone). Cette précision permet une exploitation fiable pour les projets de construction, d'aménagement ou d'expertise.
Quels types de terrains pouvez-vous relever ?
UTM intervient sur tous types de terrains : zones urbaines, terrains agricoles, sites industriels, voiries, terrains en pente ou difficilement accessibles. L'utilisation de drones permet également de relever rapidement de grandes surfaces ou des zones complexes.
Dans quels cas faut-il réaliser un relevé topographique ?
Un relevé topographique est indispensable avant :
- un projet de construction ou d'aménagement
- une division parcellaire
- des travaux de voirie ou réseaux
- une étude technique ou expertise
Il constitue la base de tout projet fiable.
Réalisez-vous des prestations de bornage ?
Non, le bornage est une opération réglementée qui relève exclusivement de la compétence d'un géomètre-expert.
UTM n'est pas habilité à réaliser des bornages, mais peut intervenir en complément pour des relevés topographiques, des implantations ou des mesures techniques nécessaires à vos projets.
Combien de temps dure une intervention ?
La durée dépend de la surface et de la complexité du site. Une intervention peut durer de quelques heures à plusieurs jours. UTM s'engage à intervenir rapidement et à fournir des délais adaptés aux contraintes du chantier.
Réalisez-vous des relevés topographiques par drone ?
Oui, UTM réalise des relevés topographiques par drone, particulièrement adaptés aux grandes surfaces et aux zones difficiles d'accès. Ces relevés sont complétés par des mesures au sol afin de garantir leur précision.
👉 En savoir plus sur notre prestation de levé topographique par drone aérien
Réalisez-vous des relevés topographiques sous-marins (bathymétrie) ?
Oui, UTM réalise des levés bathymétriques pour mesurer la profondeur et cartographier les fonds de plans d'eau.
👉 En savoir plus sur notre prestation de bathymétrie
Quels livrables fournissez-vous après un relevé ?
UTM fournit des livrables adaptés aux besoins du projet et directement exploitables :
- plans topographiques (DWG, DXF, PDF)
- nuages de points
- modèles numériques de terrain (MNT)
- orthophotographies par drone si nécessaire
Les formats sont compatibles avec les outils des maîtres d'œuvre, bureaux d'études et entreprises.
Dans quelle zone intervenez-vous ?
UTM intervient principalement dans le Grand Sud-Ouest, avec un ancrage fort en Nouvelle-Aquitaine et en Occitanie.
Les interventions en relevés topographiques sont régulières sur les secteurs de Bordeaux, Toulouse, Agen, Marmande, Périgueux, Pau, Bayonne et La Rochelle…
L'entreprise peut également intervenir sur l'ensemble du territoire selon les besoins des clients et la nature des projets.
VOUS RECHERCHEZ UN SPÉCIALISTE DES RELEVÉS TOPOGRAPHIQUES EN NOUVELLE AQUITAINE ?
NOS CERTIFICATIONS & HABILITATIONS
Certification Géoréférencement & Détection
VINCI AUTOROUTE
Autorisation Pour Travailler Ensemble sur VINCI Autoroutes
SECUFER
Accès et déplacements ferroviaires
PASS HTB
Autorisation d’intervention RTE, ENEDIS, EDF
TRAVAIL EN HAUTEUR
Habilitation pour le travail en hauteur
AIPR
Habilitation d'Autorisation d'Intervention à Proximité des Réseaux
ADNT 3001
Habilitation détection électrique
EME HAB
Habilitation TST BT Module émergence habillage nappage
B2V-H2
Habilitation électrique
DÉTECTION GAZ
Attestation géo-détection des ouvrages de distribution de gaz
H3 - RFND
Recherche de fuite non destructive (en habitat et sur réseau extérieur)
5 rue Girouflat
47200 MARMANDE
Rejoignez la team UTM 47
Suivez-nous !
© 2026 UTM - Tous droits réservés - Mentions légales & politique de confidentialité
Création du site internet
.webp?t=63fd75fa_775f708c)
.jpeg?t=63fd75fa_775f708c)
.webp?t=63fd75fa_775f708c)
.webp?t=63fd75fa_775f708c)
.webp?t=63fd75fa_775f708c)
.webp?t=63fd75fa_775f708c)
.webp?t=63fd75fa_775f708c)
.webp?t=63fd75fa_775f708c)
.webp?t=63fd75fa_775f708c)
.webp?t=63fd75fa_775f708c)