UTM|GÉOMÈTRE TOPOGRAPHE
Inspection caméra des réseaux humides
MARMANDE [47 • LOT-ET-GARONNE]
NOUVELLE AQUITAINE
UTM accompagne les maîtres d’ouvrage, les collectivités et les entreprises en s’appuyant sur des équipements d’inspection vidéo performants et une expertise topographique reconnue, afin de délivrer des diagnostics précis, géolocalisés et directement exploitables.
Objectifs
Diagnostic, contrôle et cartographie de vos réseaux humides (eaux usées, eaux pluviales, réseaux d’assainissement).
VOS BESOINS
Diagnostic avant / après travaux
- État initial des réseaux avant intervention
- Contrôle de conformité après réhabilitation ou création
- Vérification de l’intégrité des ouvrages
Réception de chantiers
- Contrôle qualité des réseaux posés
- Validation de la conformité aux cahiers des charges
- Assistance à la réception des ouvrages
Reprises en sous-oeuvre
- Inspection préalable avant travaux de fondations
- Vérification de l’impact des travaux sur les réseaux existants
- Sécurisation des interventions en site contraint
Recherche de défauts
- Détection de fissures, écrasements, affaissements
- Recherche d’infiltrations, de ruptures et d’obstacles
- Localisation de contre-pentes et défauts de pose
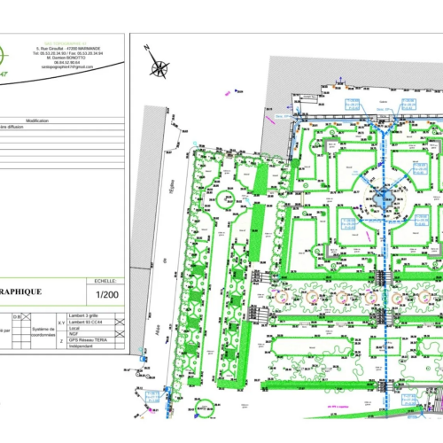
Géolocalisation des réseaux
- Localisation précise des canalisations existantes
- Relevés topographiques des regards et ouvrages
- Intégration SIG et plans de récolement
LIVRABLES
Plans topographiques géoréférencés
- Géolocalisation précise des réseaux inspectés
- Positionnement des regards, branchements et ouvrages
- Intégration dans vos plans VRD et SIG
Compte-rendu d’inspection détaillé
- Rapport illustré (photos et extraits vidéo)
- Localisation des défauts par métrage
- Description technique des anomalies constatées
- Recommandations techniques si nécessaire
Vidéos d’inspection
- Enregistrement intégral des inspections
- Fichiers exploitables pour suivi et archivage
- Support pour expertises et assurances
MOYENS TECHNIQUES
- Caméras motorisées haute définition
- Localisation par sonde et récepteur
- Relevé topographique des ouvrages
- Géoréférencement précis des réseaux
VOUS ÊTES ASSUREUR OU EXPERT ?
FOIRE AUX QUESTIONS
Quels types de réseaux peuvent être inspectés ?
L'inspection concerne les réseaux humides, notamment :
- eaux usées (EU)
- eaux pluviales (EP)
- réseaux d'assainissement
- canalisations enterrées ou accessibles
Dans quels cas réaliser une inspection caméra ?
Elle est recommandée :
- en cas de bouchon ou d'écoulement difficile
- pour détecter des fissures ou infiltrations
- avant un achat immobilier
- dans le cadre d'un diagnostic ou d'une expertise
- après travaux pour vérifier la conformité
Que permet de détecter une inspection caméra ?
L'inspection permet de détecter :
- obstructions ou dépôts
- fissures, cassures ou déformations
- défauts de raccordement
- intrusion de racines
- affaissements ou anomalies structurelles
L'inspection caméra nécessite-t-elle de casser ?
Non, il s'agit d'une méthode non destructive qui permet de visualiser l'intérieur des canalisations sans travaux lourds.
Quels livrables fournissez-vous ?
UTM fournit :
- enregistrement vidéo de l'inspection
- photos des anomalies
- rapport détaillé avec localisation des défauts constatés
Un relevé topographique peut également être réalisé en amont afin de créer un plan précis du site, d'y intégrer les réseaux et les passages caméra, pour une restitution complète et exploitable dans le rapport final.
Quelle est la précision du diagnostic ?
L'inspection permet une visualisation directe des anomalies. Elle peut être complétée par des relevés ou une détection de réseaux pour localiser précisément les zones concernées.
Intervenez-vous uniquement pour l'inspection ou aussi pour la réparation ?
UTM réalise les inspections et diagnostics. Les travaux de réparation peuvent être réalisés par des entreprises spécialisées si nécessaire.
Combien coûte une inspection caméra ?
Le tarif dépend de la longueur du réseau, de son accessibilité et du niveau de diagnostic attendu.
Une estimation peut être réalisée après analyse du besoin.
Pour info - prix d’une journée 800€ (hors déplacement si suppl à 50Km)
Dans quelle zone intervenez-vous ?
UTM intervient principalement dans le Grand Sud-Ouest, avec un ancrage en Nouvelle-Aquitaine et en Occitanie.
Des interventions sur l'ensemble du territoire sont également possibles selon les besoins des projets.
VOUS RECHERCHEZ UN SPÉCIALISTE DE L'INSPECTION PAR CAMÉRA DES RÉSEAUX HUMIDES EN NOUVELLE AQUITAINE ?
NOS CERTIFICATIONS & HABILITATIONS
Certification Géoréférencement & Détection
VINCI AUTOROUTE
Autorisation Pour Travailler Ensemble sur VINCI Autoroutes
SECUFER
Accès et déplacements ferroviaires
PASS HTB
Autorisation d’intervention RTE, ENEDIS, EDF
TRAVAIL EN HAUTEUR
Habilitation pour le travail en hauteur
AIPR
Habilitation d'Autorisation d'Intervention à Proximité des Réseaux
ADNT 3001
Habilitation détection électrique
EME HAB
Habilitation TST BT Module émergence habillage nappage
B2V-H2
Habilitation électrique
DÉTECTION GAZ
Attestation géo-détection des ouvrages de distribution de gaz
H3 - RFND
Recherche de fuite non destructive (en habitat et sur réseau extérieur)
5 rue Girouflat
47200 MARMANDE
Rejoignez la team UTM 47
Suivez-nous !
© 2026 UTM - Tous droits réservés - Mentions légales & politique de confidentialité
Création du site internet
.webp?t=0a1a95ac_775f708c)
.webp?t=0a1a95ac_775f708c)
.webp?t=0a1a95ac_775f708c)
.webp?t=0a1a95ac_775f708c)
.webp?t=0a1a95ac_775f708c)
.webp?t=0a1a95ac_775f708c)
.webp?t=0a1a95ac_775f708c)
.webp?t=0a1a95ac_775f708c)
.webp?t=0a1a95ac_775f708c)
.webp?t=0a1a95ac_775f708c)
.webp?t=0a1a95ac_775f708c)



